WIMBLEDON VILLAGE

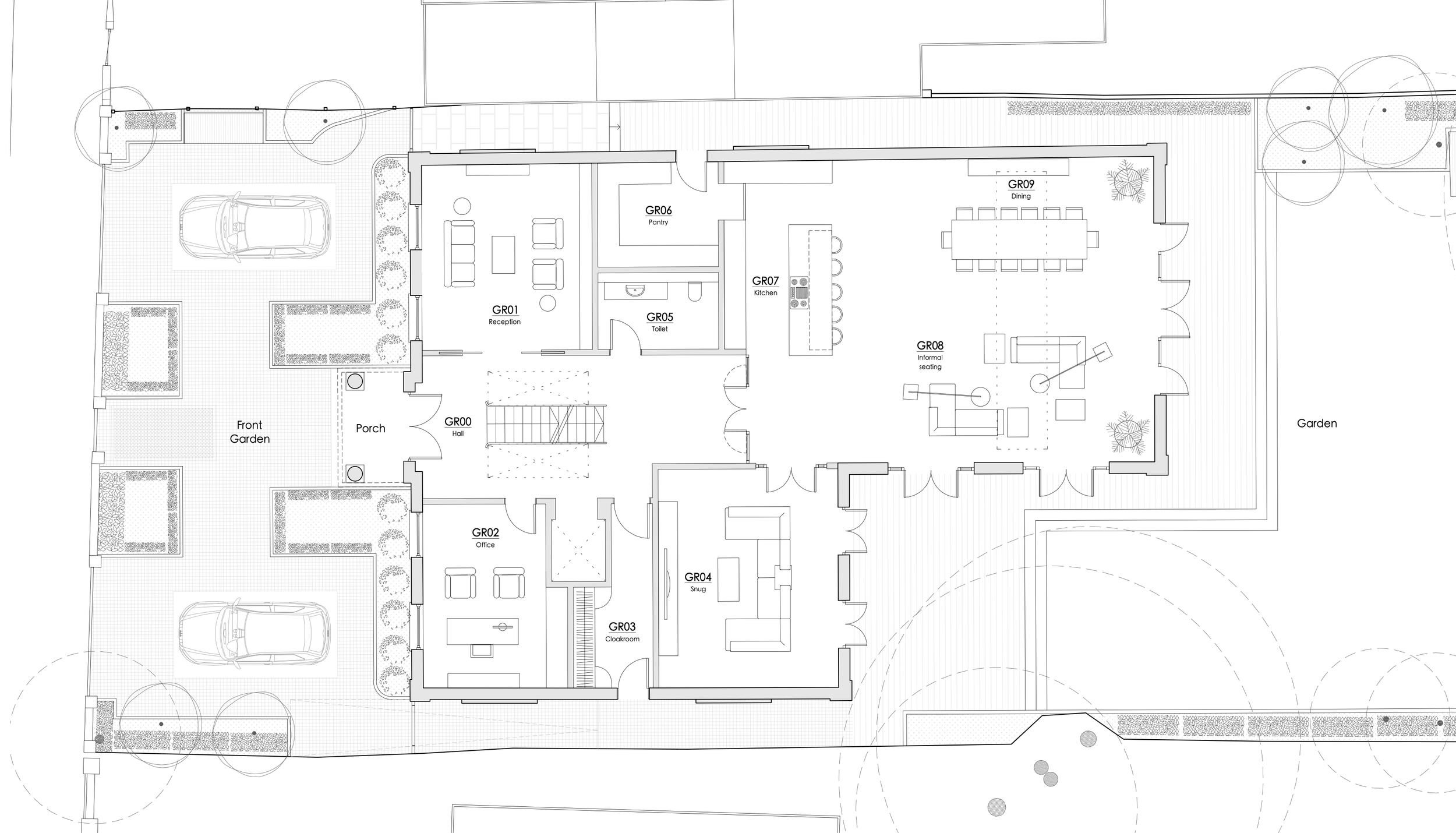
A new build three storey plus basement 11,000sq ft dwelling just off Wimbledon Common, on Calonne Road in a Conservation Area. The proposed new family home is seven times the size of the 1960s house on the site. 

We have just received planning approval in the first application for the full scheme and are now working on the detailed design to commence on site shortly. 

The design is based on traditional Georgian proportions. The simple classical design focuses on high quality materials, carefully detailed. The exterior is made up of Portland Stone architectural details to the eves as well as the surrounds to the timber sash windows and doors. This is complemented by reclaimed facing brick with lime pointing under a welsh slate roof. The main entrance is defined by a central stone portico.